Conexiunea cazanelor pe combustibili solizi ATMOS
Pentru funcționarea corectă a oricărui cazan este importantă conectarea/racordarea acestuia, care influențează consumul de combustibil, confortul și durata de viață a cazanului și a coșului de fum.
Cerințele pentru modalitatea de conectare și centrala termică, deci, se pot rezuma în câteva puncte de bază.
Condiții generale pentru o bună funcție și durată de viață lungă a cazanelor ATMOS
- Montajul cazanului este efectuat doar de către o firmă de specialitate instruită de fabricant.
- Cazanul trebuie instalat într-un spațiu uscat și bine ventilat – centrala termică.
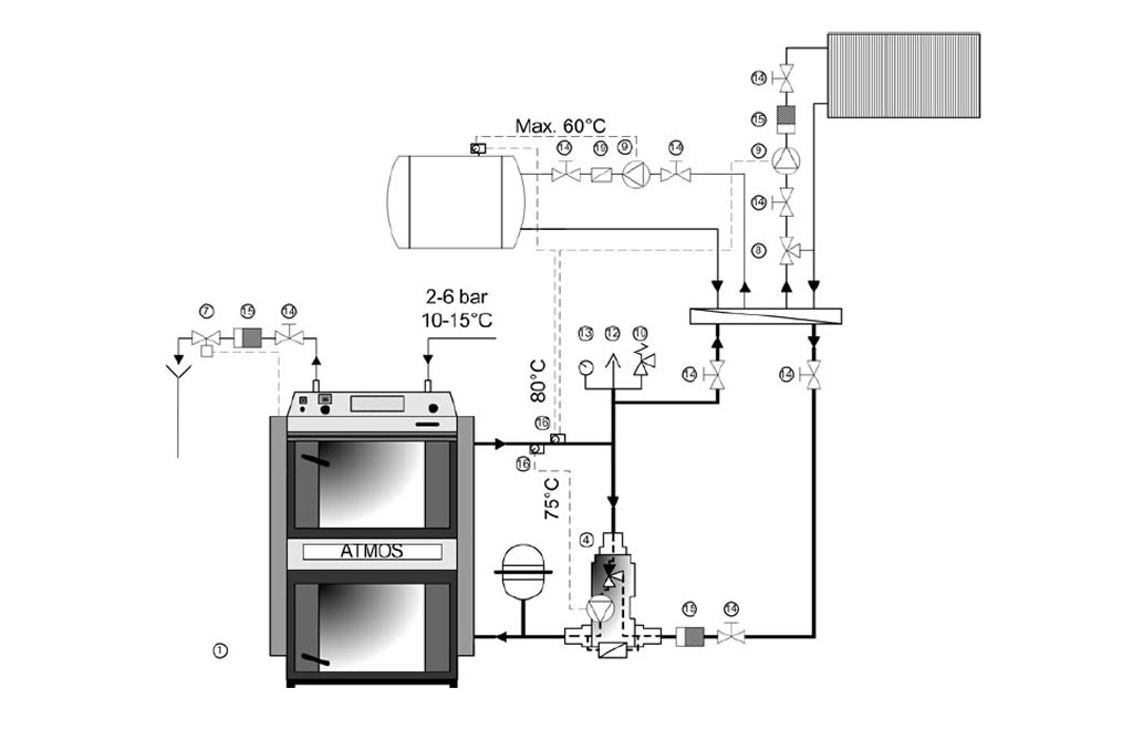
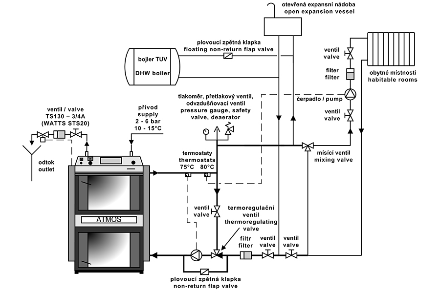
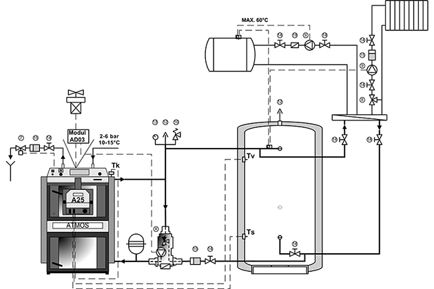
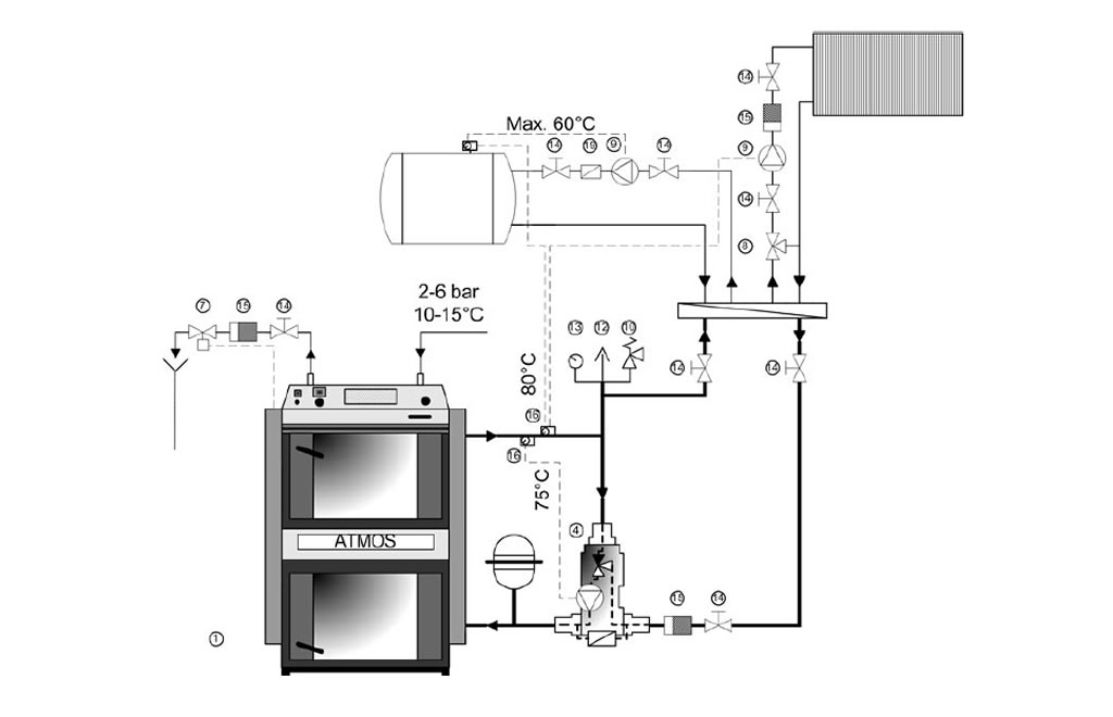
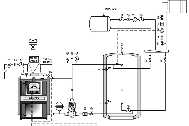
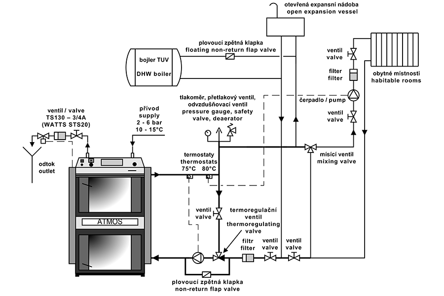
Alimentarea cu aerul de ardere din spațiile exterioare este baza pentru buna funcționare a cazanului. - În cazul conectării cazanului, este întotdeauna necesar a folosi, în circuitul cazanului, armătura care va sigura faptul ca temperatura apei care se întoarce în cazan să nu scadă sub 65 °C.
Odată cu temperatura în creștere a apei revenind în cazan scade condensarea gudronului de acizi = durata de viață mai lungă a cazanului. De aceea recomandăm să folosiți Laddomat 22, supapa de reglare termică TV 65/70/75 °C sau supapa cu trei căi comandată cu acționarea servo, reglajul ACD03/04 și pompă.
Deci, soluția ideală este instalarea cu conexiunea originală a cazanului ATMOS F1, F2, F3, F4, F12 sau F31 și F32.
Conexiunea originală ATMOS = conexiune simplă fără erori la instalare - În fiecare regim al cazanului, temperatura de ieșire a apei din cazan trebuie să fie între 80 – 90 °C.
Temperatura de operare ridicată a cazanului, practic, nu are influență asupra consumului de combustibil nici asupra temperaturii cerute a apei pe care o introducem în sistemul de încălzire (40 – 80°C), însă va asigura durata de viață lungă a cazanului.
Pompele din circuitul cazanului și din circuitul obiectivului încălzit se cuplează cu ajutorul termostatelor în așa fel, încât pompele din circuitul obiectivului încălzit să funcționeze doar atunci dacă funcționează pompa în circuitul cazanului (conectare fără rezervor de acumulare) sau dacă avem energie acumulată în rezervoare. - Conexiunea cazanului cu rezervoare de acumulare
Cazanele pot fi conectate fără și cu rezervoare de acumulare. Este însă valabil faptul că, conexiunea cu rezervorul de acumulare (capacitate min. 55 l /1 kW putere cazan) este cea mai bună conexiune pentru cazanul cu adăugarea manuală a combustibilului.
La cazanele pe peleți, recomandăm să instalați doar rezervorul de compensare având capacitatea de la 500 până la 1000 l în funcție de puterea cazanului. Rezervor de acumulare = consum mai mic de combustibil, energie electrică și durată de viață mai lungă a cazanului. - Niciodată nu operăm permanent cazanul în regim de inhibiție.
În cazul în care operăm cazanul la puteri mai mici de 40% putere nominală sau pentru încălzirea apei calde menajere în timpul verii, este necesar să pornim zilnic cazanul din cauza duratei de viață a acestuia. În regimul de inhibare apar zguri și acizi care deteriorează corpul cazanului.
Temperatura gazelor de evacuare, în cazul operării normale, nu ar trebui să scadă sub 110 °C, așa protejați cazanul și coșul de fum. - Cazanul trebuie să fie asigurat contra încălzirii excesive în cazul penei de curent
Prin conectarea buclei de răcire a cazanului pe conducta de apă sau prin utilizarea sursei de energie electrică de rezervă, protejați cazanul contra supraîncălzirii în cazul unei pene neașteptate de curent electric. - Suprapresiunea de lucru maximă a apei în cazan – 250 kPA (2,5 bar)
Nu uităm niciodată să instalăm în spatele cazanului supapa de siguranță și vasul de expansiune, care protejează cazanul și sistemul de încălzire contra deteriorării.
Mărimea corectă a vasului de expansiune asigură durata de viață lungă a cazanului și a tuturor instalațiilor în sistem (supape, radiatoare, boiler combi, rezervor de acumulare etc.). Vasul de expansiune deschis ar trebui să aibă capacitatea min. de 10 % din capacitatea totală a sistemului. Vasul de expansiune închis ar trebui să aibă capacitatea min. de 13 % din capacitatea totală a sistemului.







































