Raccordement des chaudières à combustible solide ATMOS
Pour le bon fonctionnement de toute chaudière, son raccordement est important, ce qui influe sur la consommation de combustible, le confort de chauffage et la durée de vie de la chaudière et de la cheminée.
Les exigences relatives au mode de raccordement et à la chaufferie peuvent donc être résumées en quelques points fondamentaux.
Conditions de base pour un bon fonctionnement et une longue durée de vie des chaudières ATMOS
- L’installation de la chaudière est effectuée uniquement par une entreprise spécialisée formée par le fabricant.
Nous vous conseillons donc de choisir votre chauffagiste sur notre site internet dans la rubrique Techniciens et chauffagistes. - La chaudière doit être installée dans un endroit sec et bien aéré – la chaufferie.
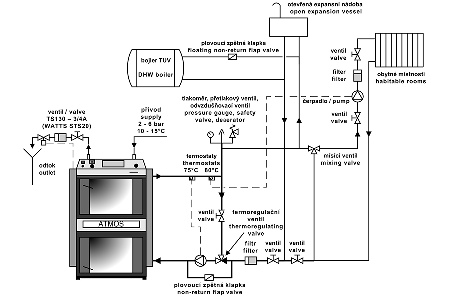
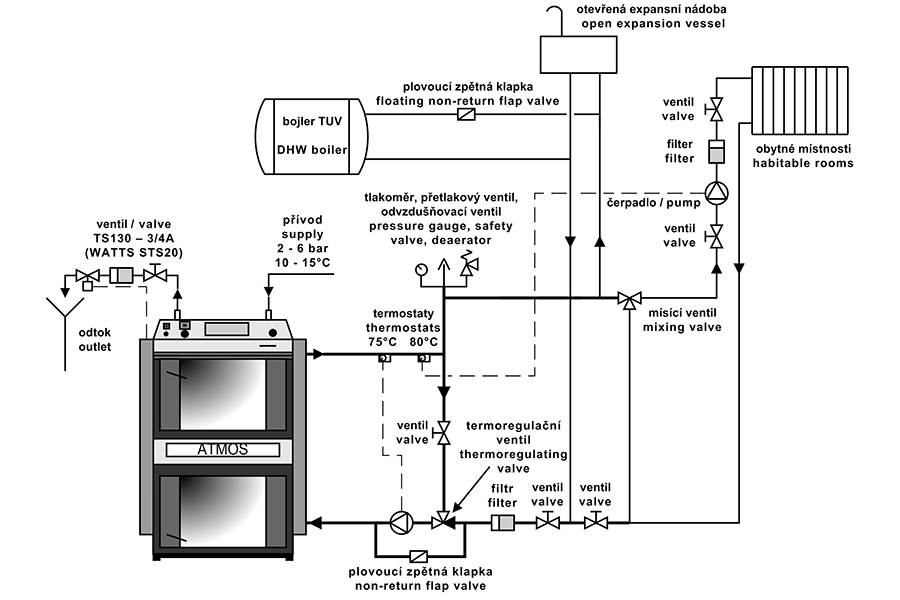
L’arrivée en air de combustion de l’extérieur est la base du bon fonctionnement de la chaudière. - Lors du raccordement de la chaudière, il est toujours nécessaire d’utiliser un raccord dans le circuit de la chaudière qui garantit que la température de l’eau retournant à la chaudière ne descende pas en dessous de 65 °C
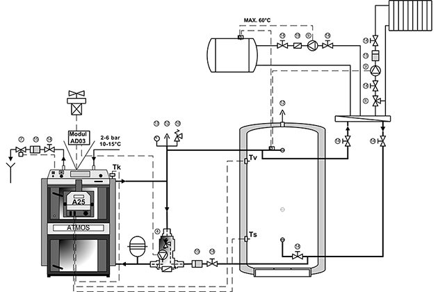
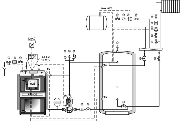
Au fur et à mesure que la température de l’eau de retour à la chaudière augmente, la condensation des goudrons acides diminue = durée de vie de la chaudière plus longue. Nous recommandons donc d’utiliser le Laddomat 22, la vanne thermorégulatrice TV 65/70/75 °C ou la vanne trois voies pilotée avec servomoteur, régulation ACD 03/04 et pompe. La solution idéale est donc une installation avec le raccordement d’origine de la chaudière ATMOS F5, F6, F7, F8 ou F13.
Connexion ATMOS originale = connexion simple sans erreurs lors de l’installation - Dans chaque mode de la chaudière, la température de l’eau sortant de la chaudière doit être comprise entre 80 et 90 °C.
La température de fonctionnement élevée de la chaudière n’a aucun effet pratique sur la consommation de combustible ou sur la température requise de l’eau que nous laissons entrer dans le système de chauffage (40 – 80 °C), mais elle garantira une longue durée de vie de la chaudière. - Raccordement chaudière avec réservoirs d’accumulation
Les chaudières peuvent être raccordées sans ou avec des ballons de stockage. Cependant, il est vrai que le raccordement avec le réservoir d’accumulation (volume minimum 55 l /1 kW de puissance de la chaudière) est le meilleur raccordement pour les chaudières à chargement manuel. - Jamais laisser fonctionner la chaudière en permanence en état réduit.
Si l’on fait fonctionner la chaudière à une puissance inférieure à 40 % de la puissance nominale ou pour chauffer l’eau chaude sanitaire en été, il est nécessaire de chauffer la chaudière quotidiennement pour la durée de vie de la chaudière. Des goudrons et des acides pouvant se former dans l’atténuation, endommagent le corps de la chaudière. - La chaudière doit être protégée contre la surchauffe en cas de panne de courant
En raccordant la boucle de refroidissement de la chaudière au réseau d’alimentation en eau ou en utilisant une source d’alimentation de secours, vous protégerez la chaudière et le système de chauffage contre la surchauffe en cas de coupure de courant soudaine. - Surpression maximale de service de l’eau dans la chaudière – 250 kPA (2,5 bar)
N`oubliez jamais d’installer une vanne d’assurance et un vase d’expansion qui protège la chaudière et le système de chauffage contre les dommages derrière la chaudière.
La bonne taille du vase d’expansion garantira une longue durée de vie de la chaudière et de tous les appareils de l’installation (vannes, radiateurs, chaudière mixte, ballon de stockage, etc.).Le vase d’expansion ouvert doit avoir un volume de min. 10 % du volume total du système. Le vase d’expansion fermé doit avoir un volume de min. 13 % du volume total du système.







































