Conexión de calderas de combustible sólido ATMOS
Para el buen funcionamiento de cualquier caldera, es importante su conexión que afecta al consumo de combustible, al confort de calefacción y a la vida útil de la caldera y la chimenea.
Por lo tanto, los requisitos para el modo de cableado y la sala de calderas se pueden resumir en unos pocos puntos básicos.
Condiciones básicas para un buen funcionamiento y una larga vida útil de las calderas ATMOS
- La instalación de la caldera la realiza sólo una empresa profesional formada por el fabricante.
- La caldera debe instalarse en un lugar seco y bien ventilado: la sala de calderas.
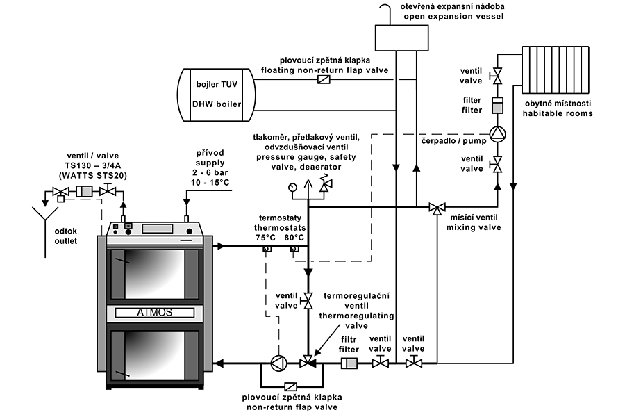
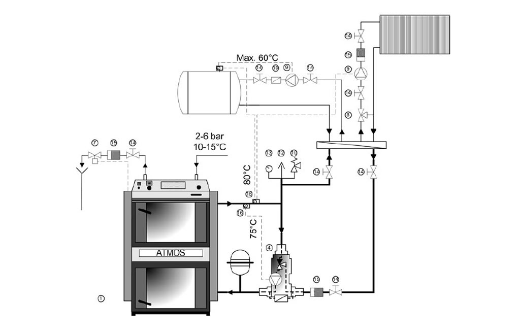
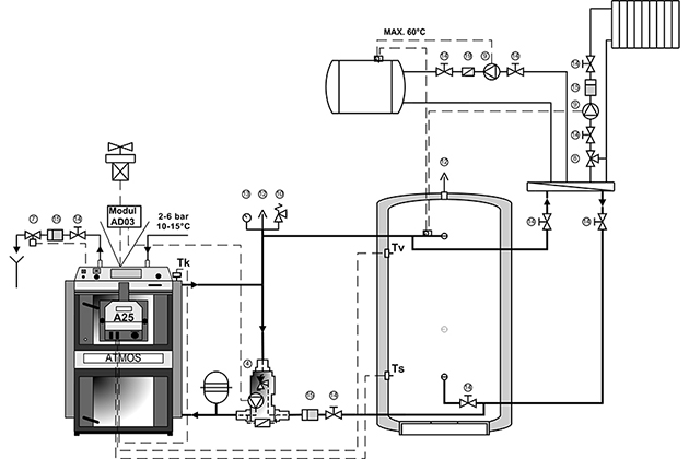
El suministro de aire de combustión desde el exterior es esencial para el buen funcionamiento de la caldera. - Al conectar la caldera, siempre es necesario utilizar una válvula en el circuito de la caldera para garantizar que la temperatura del agua de retorno a la caldera no descienda por debajo de 65 °C.
Al aumentar la temperatura del agua de retorno a la caldera, disminuye la condensación de alquitranes ácidos = mayor vida útil de la caldera. Por ello, recomendamos utilizar Laddomat 22, una válvula termorreguladora TV 65/70/75 °C o una válvula de tres vías con actuador, mando ACD03/04 y bomba.
Por lo tanto, la solución ideal es la instalación con el cableado original de la caldera ATMOS F1, F2, F3, F4, F12 o F31 y F32.
Conexión original ATMOS = conexión sencilla sin errores de instalación - En cada modo de caldera, la temperatura del agua de salida de la caldera debe estar entre 80 – 90 °C
La alta temperatura de funcionamiento de la caldera no tiene ningún efecto práctico sobre el consumo de combustible o la temperatura requerida del agua alimentada al sistema de calefacción (40 – 80°C), pero garantiza una larga vida útil de la caldera.
Conmutamos las bombas del circuito de caldera y del circuito del edificio calentado con termóstatos, de modo que las bombas del circuito del edificio calentado funcionen sólo si está en marcha la bomba del circuito de caldera (conexión sin acumulador) o si tenemos energía acumulada en los acumuladores. - Conexión de calderas con depósitos de acumulación
Las calderas pueden conectarse sin o con acumulador. Sin embargo, la mejor conexión para las calderas con alimentación manual es la que dispone de un depósito de acumulación (volumen mínimo 55 l /1 kW de potencia de la caldera).
Para las calderas de pellets, recomendamos instalar sólo un depósito de acumulación con una capacidad de 500 a 1000 l en función de la potencia de la caldera. Depósito de acumulación = menor consumo de combustible y electricidad y mayor vida útil de la caldera. - Nunca hacemos funcionar la caldera en una bajada permanente.
Si la caldera funciona a menos del 40 % de su potencia nominal o para calentar agua caliente sanitaria en el verano, es necesario calentar la caldera diariamente por el motivo de su vida útil. En la caldera pueden formarse alquitrán y ácidos que dañan el cuerpo de la caldera.
La temperatura de los gases de combustión no debe descender por debajo de 110 °C durante el funcionamiento normal, protegiendo así la caldera y la chimenea. - La caldera debe estar asegurada contra el sobrecalentamiento en caso de corte del suministro eléctrico.
Conectando el bucle de refrigeración de la caldera a la línea de suministro de agua o utilizando una fuente de alimentación de reserva, protegerá la caldera y el sistema de calefacción contra el sobrecalentamiento en caso de corte de energía repentino. - Sobrepresión de trabajo máxima del agua en la caldera – 250 kPA (2,5 bar)
No olvide nunca instalar una válvula de seguro y un depósito de expansión detrás de la caldera para proteger la caldera y el sistema de calefacción contra posibles daños.
El tamaño correcto del depósito de expansión garantizará una larga vida útil de la caldera y de todos los equipos del sistema (válvulas, radiadores, caldera mixta, acumulador, etc.).
El depósito de expansión abierto debe tener un volumen mínimo del 10% del volumen total del sistema. El depósito de expansión cerrado debe tener un volumen de al menos el 13 % del volumen total del sistema.






































