Collegamento delle caldaie a combustibili solidi ATMOS
Per il corretto funzionamento di qualsiasi caldaia è importante il collegamento della stessa, il quale influisce sul consumo di combustibile, sul comfort di riscaldamento e sulla durata della caldaia e del camino.
I requisiti riguardanti le modalità di collegamento e il locale caldaia possono quindi essere riassunti in pochi punti di base.
Condizioni di base per buon funzionamento e elevata vita utile delle caldaie ATMOS
- L’installazione della caldaia deve essere eseguita esclusivamente da un’azienda specializzata, addestrata dal fabbricante.
Per questo motivo si consiglia di scegliere il termotecnico nella sezione Tecnici e termotecnici del nostro sito. - La caldaia deve essere installata in un locale asciutto e ben ventilato – locale caldaia.
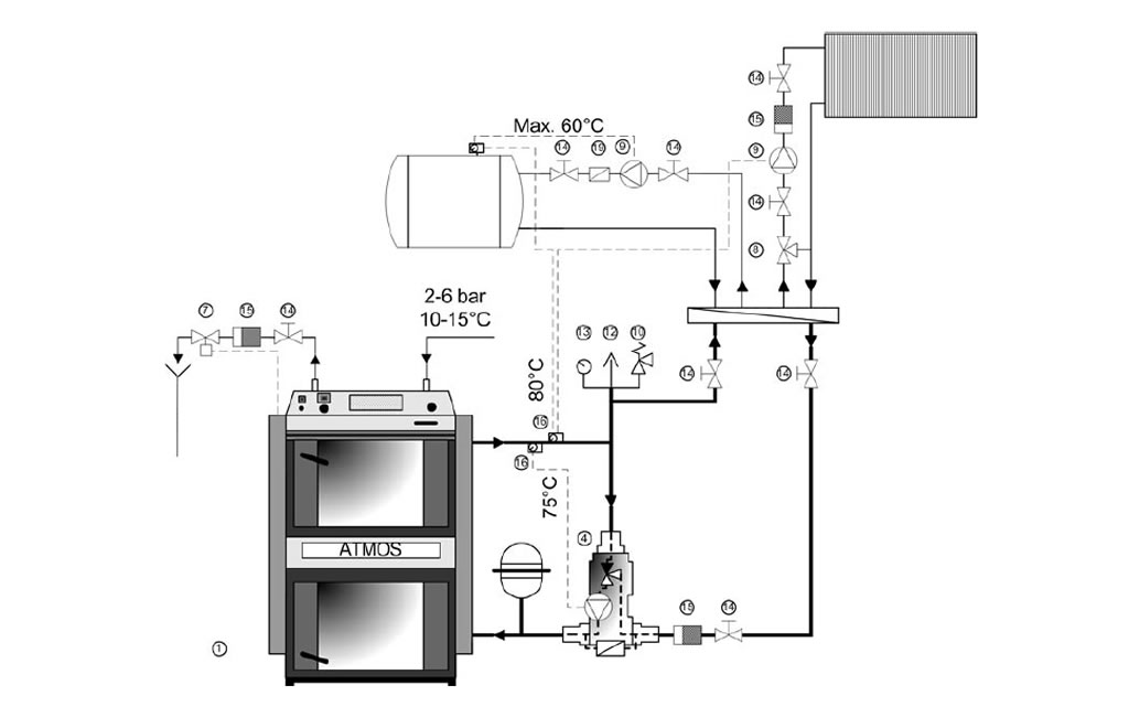
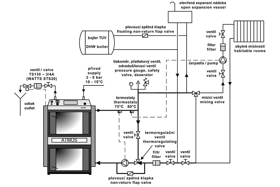
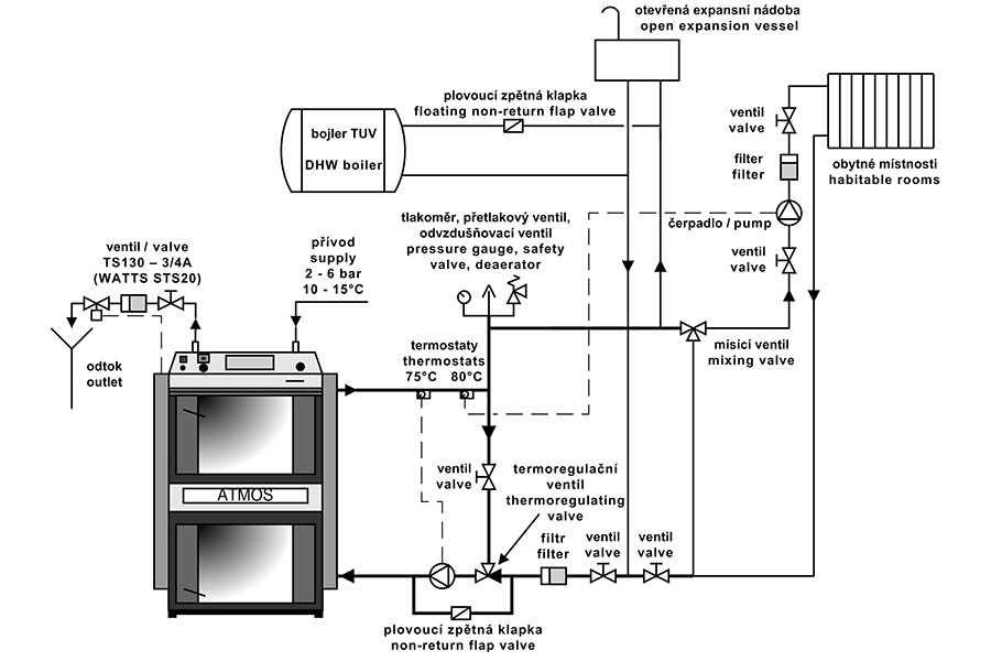
L’immissione di aria comburente dall’esterno è essenziale per il buon funzionamento della caldaia. - Per il collegamento della caldaia bisogna sempre utilizzare, nel circuito della caldaia, la rubinetteria che garantisca che la temperatura dell’acqua di ritorno alla caldaia non scenda al di sotto dei 65 °C
Con l’aumento della temperatura dell’acqua di ritorno alla caldaia cala la condensazione degli acidi di catrame = maggiore vita utile della caldaia. Si consiglia pertanto di utilizzare Laddomat 22, una valvola di termoregolazione TV 65/70/75 °C o una valvola a tre vie controllata con servocomando, regolazione ACD03/04 e pompa.
La soluzione ideale è quindi l’installazione con il collegamento originale della caldaia ATMOS F1, F2, F3, F4, F12 oppure F31 e F32.
Collegamento originale ATMOS = collegamento semplice senza errori di installazione - In ogni modalità di funzionamento della caldaia, la temperatura dell’acqua di uscita dalla caldaia deve essere compresa tra 80 e 90 °C
L’elevata temperatura di esercizio della caldaia non ha alcun impatto pratico né sul consumo di combustibile, né sulla temperatura richiesta dell’acqua immessa nell’impianto di riscaldamento (40-80 °C), ma garantisce una lunga vita utile della caldaia.
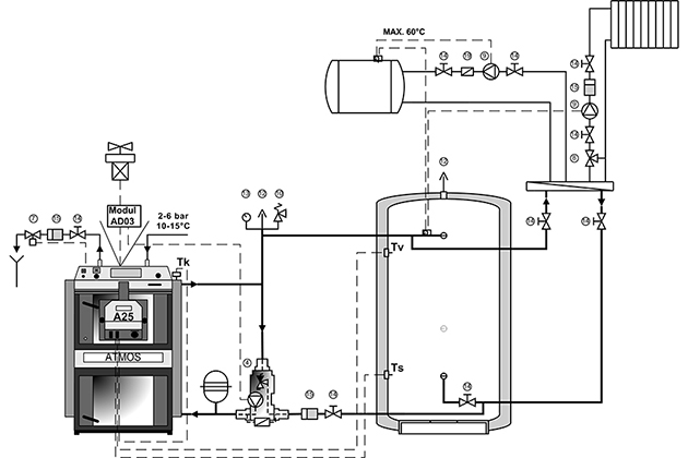
Le pompe nel circuito caldaia e nel circuito dell’edificio riscaldato vengono controllate con termostati in modo tale che le pompe nel circuito dell’edificio riscaldato funzionino solo se risulta in funzione la pompa nel circuito caldaia (collegamento senza serbatoio di accumulo) o in caso di energia accumulata nei serbatoi. - Collegamento della caldaia con serbatoi di accumulo
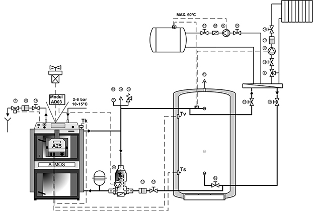
Le caldaie possono essere collegate senza o con serbatoi di accumulo. Tuttavia vale che per le caldaie a caricamento manuale il collegamento migliore è quello con serbatoio di accumulo (volume minimo 55 l /1 kW della potenza della caldaia).
Per le caldaie a pellet, si consiglia di installare solo un serbatoio di compensazione dal volume compreso tra 500 e 1000 l, a seconda della potenza della caldaia. Serbatoio di accumulo = minore consumo di combustibile e di energia elettrica e maggiore durata della caldaia. - Non si deve mai far funzionare la caldaia in modo permanente a potenza ridotta.
Se la caldaia funziona a meno del 40% della potenza nominale o se viene usata per riscaldare l’acqua calda sanitaria in estate, ai fini della vita utile, la stessa deve essere quotidianamente messa in funzione. In caso di funzionamento a potenza ridotta, nella caldaia si possono formare catrame e acidi che danneggiano il corpo della stessa.
Durante il normale funzionamento, la temperatura dei fumi non dovrebbe scendere al di sotto dei 110 °C: così si protegge sia la caldaia che la canna fumaria. - La caldaia deve essere protetta dal surriscaldamento in caso di mancanza di corrente elettrica
Collegando il circuito di raffreddamento della caldaia alla rete idrica o utilizzando un alimentatore tampone, la caldaia e il sistema di riscaldamento vengono protetti dal surriscaldamento in caso di improvvisa mancanza di corrente elettrica. Il corretto dimensionamento del vaso di espansione garantisce una lunga durata della caldaia e di tutte le apparecchiature del sistema (valvole, radiatori, bollitore combinato, serbatoio di accumulo, ecc.).
Il volume del vaso di espansione aperto deve corrispondere almeno al 10% del volume complessivo del sistema. Il volume del vaso di espansione chiuso deve corrispondere almeno al 13% del volume complessivo del sistema.






































