Podłączenie kotłów na paliwo stałe ATMOS
Dla prawidłowego funkcjonowania każdego kotła ważne jest jego podłączenie, które wpływa na zużycie paliwa, komfort ogrzewania oraz żywotność kotła i komina.
Wymagania dotyczące sposobu podłączenia i kotłowni można zatem streścić w kilku podstawowych punktach.
Podstawowe warunki dobrego funkcjonowania i długiej żywotności kotłów ATMOS
- Montaż kotła przeprowadza wyłącznie specjalistyczna firma przeszkolona przez producenta.
Dlatego zalecamy wybranie instalatora instalacji grzewczych na naszej stronie internetowej w sekcji Technicy i instalatorzy instalacji grzewczych. - Kocioł należy zainstalować w suchym i dobrze wentylowanym pomieszczeniu – kotłowni.
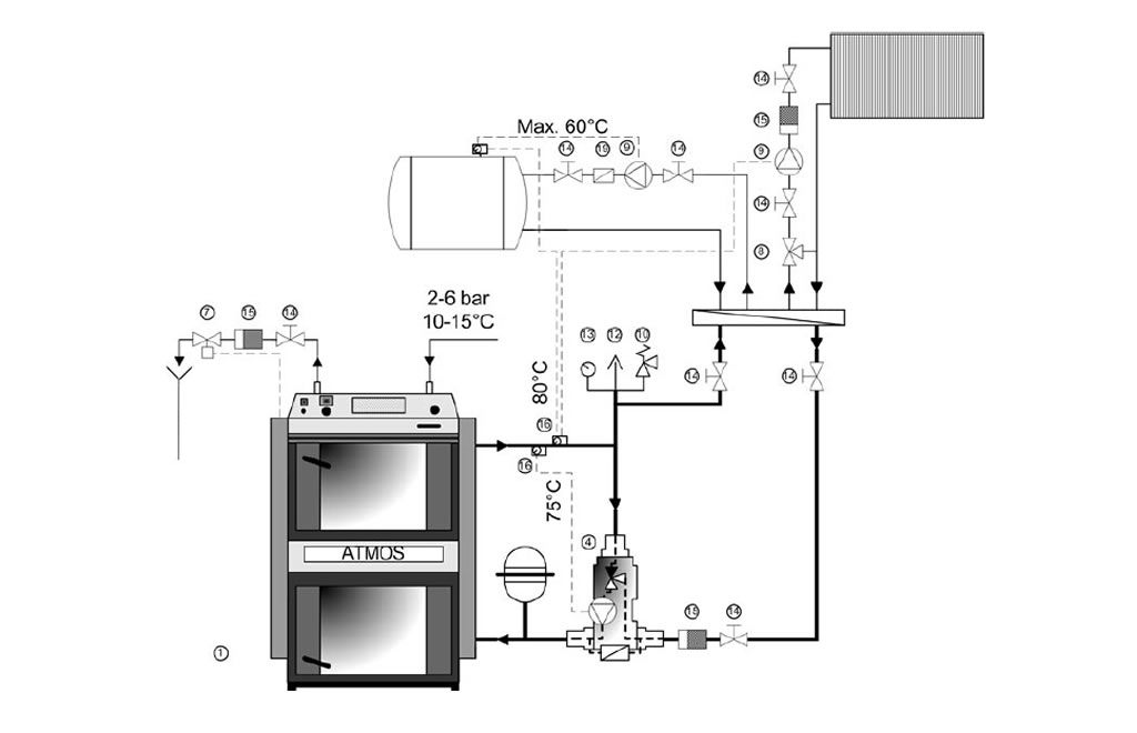
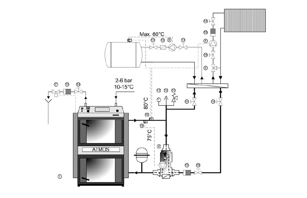
Doprowadzenie powietrza do spalania z zewnątrz jest podstawą dobrego funkcjonowania kotła. - Przy podłączaniu kotła należy zawsze zastosować armaturę w obiegu kotła, która zapewni, że temperatura wody powracającej do kotła nie spadnie poniżej 65 °C
Wraz ze wzrostem temperatury wody powracającej do kotła zmniejsza się kondensacja kwaśnych smół = dłuższa żywotność kotła. Dlatego zalecamy stosowanie Laddomat 22, zaworu termoregulacyjnego TV 65/70/75 °C lub sterowanego zaworu trójdrogowego z serwonapędem, regulatorem ACD 03/04 i pompą.
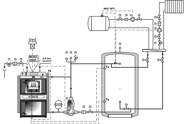
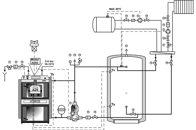
Idealnym rozwiązaniem jest zatem instalacja z oryginalnym podłączeniem kotła ATMOS F1, F2, F3, F4, F12 lub F31 i F32.
Oryginalne podłączenie ATMOS = proste podłączenie bez błędów podczas instalacji - W każdym trybie pracy kotła temperatura wody opuszczającej kocioł musi mieścić się w przedziale 80 – 90 °C.
Wysoka temperatura robocza kotła nie ma praktycznego wpływu na zużycie paliwa ani na wymaganą temperaturę wody, którą wpuszczamy do instalacji grzewczej (40 – 80°C), ale zapewni to długą żywotność kotła.
Termostaty pomp w obiegu kotła i w obiegu ogrzewanego obiektu przełączamy tak, aby pompy w obiegu ogrzewanego obiektu pracowały tylko wtedy, gdy pracuje pompa w obiegu kotła (podłączenie bez zbiornika) lub jeżeli w zbiornikach znajduje się zgromadzona energia. - Podłączenie kotła ze zbiornikami akumulacyjnymi
Kocioł można podłączyć bez zbiornika lub ze zbiornikiem. Prawdą jest jednak, że podłączenie ze zbiornikiem akumulacyjnym (min. objętość 55 l /1 kW mocy kotła) jest najlepszym podłączeniem dla kotłów z załadunkiem ręcznym.
W przypadku kotłów na pellet zalecamy montaż wyłącznie zbiornika wyrównawczego o pojemności od 500 do 1000 l, w zależności od mocy kotła. Zbiornik akumulacyjny = mniejsze zużycie paliwa, energii el. i dłuższa żywotność kotła. - Nigdy nie eksploatujemy kotła na stałe w stanie redukcji mocy.
Jeżeli kocioł eksploatujemy z mocą niższą niż 40 % mocy znamionowej lub w celu podgrzewania ciepłej wody użytkowej w okresie letnim, ze względu na żywotność kotła konieczne jest codzienne rozgrzewanie kotła. W przypadku stanu redukcji mocy mogą tworzyć się smoły i kwasy, które uszkadzają korpus kotła.
Podczas normalnej pracy temperatura spalin nie powinna spaść poniżej 110 °C, chroniąc w ten sposób kocioł i komin. - Kocioł należy zabezpieczyć przed przegrzaniem na wypadek zaniku prądu
Poprzez podłączenie obiegu chłodzącego kotła do sieci wodociągowej lub poprzez zastosowanie rezerwowego źródła zasilania energii el., zabezpieczysz kocioł i instalację grzewczą przed przegrzaniem w przypadku nagłej przerwy w dostawie prądu.









































