Zapojení kotlů na pevná paliva ATMOS
Pro správné fungování jakéhokoliv kotle je důležité jeho zapojení, které ovlivňuje spotřebu paliva, komfort topení a životnost kotle a komínu.
Požadavky na způsob zapojení a kotelnu lze tedy shrnout do několika základních bodů.
Základní podmínky pro dobrou funkci a dlouhou životnost kotlů ATMOS
- Montáž kotle provádí jen odborná firma zaškolená výrobcem.
Doporučujeme si proto vybrat svého topenáře na našem webu v sekci Technici a topenáři. - Kotel musí být instalován v suchém a dobře větraném prostoru – kotelně.
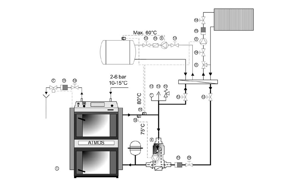
Přívod spalovacího vzduchu z venkovních prostor je základem dobrého fungování kotle. - Při zapojení kotle je vždy nutné použít v kotlovém okruhu armaturu, která zajistí, aby teplota vody vracející se do kotle neklesala pod 65 °C
S rostoucí teplotou vratné vody do kotle, klesá kondenzace dehtů kyselin = větší životnost kotle. Doporučujeme proto použít Laddomat 22, termoregulační ventil TV 65/70/75 °C nebo řízený trojcestný ventil se servopohonem, regulací ACD03/04 a čerpadlem.
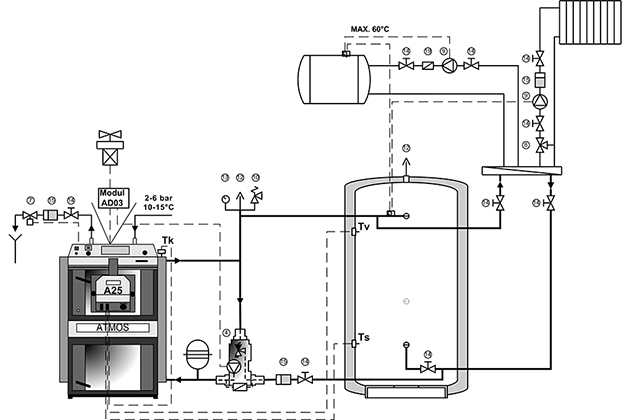
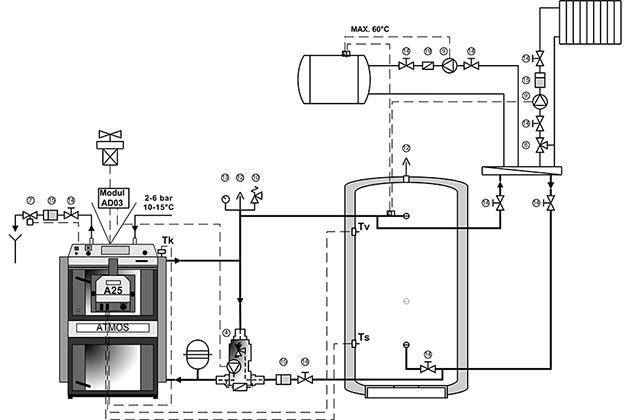
Ideálním řešením je tedy instalace s originálním zapojením kotle ATMOS F1, F2, F3, F4, F12, F31 a F32, F71.
Originální zapojení ATMOS = jednoduché zapojení bez chyb při instalaci - V každém režimu kotle musí být teplota výstupní vody z kotle mezi 80 – 90 °C
Vysoká provozní teplota kotle nemá praktický vliv na spotřebu paliva ani na požadovanou teplotu vody, kterou pouštíme do topného systému (40 — 80 °C), ale zabezpečí dlouhou životnost kotle.
Čerpadla v kotlovém okruhu a v okruhu vytápěného objektu spínáme termostaty tak, aby čerpadla v okruhu vytápěného objektu běžela jen tehdy, pokud běží čerpadlo v kotlovém okruhu (zapojení bez akumulační nádrže) nebo pokud máme naakumulovanou energii v nádržích. - Zapojení kotle s akumulačními nádržemi
Kotle je možné zapojit bez i s akumulačními nádržemi. Platí však, že zapojení s akumulační nádrží (min. objem 55 l /1 kW výkonu kotle) je nejlepším zapojením pro kotle s ručním přikládáním.
U kotlů na pelety doporučujeme instalovat pouze vyrovnávací nádrž o objemu 500 až 1000 l podle výkonu kotle. Akumulační nádrž = nižší spotřeba paliva, el. energie a delší životnost kotle. - Kotel neprovozujeme nikdy trvale v útlumu.
Provozujeme-li kotel při výkonu nižším než 40 % jmenovitého výkonu anebo pro ohřev teplé užitkové vody v létě, je nutné denně zatápět z důvodu životnosti kotle. V útlumu mohou vznikat dehty a kyseliny, které poškozují těleso kotle.
Teplota spalin by při normálním provozu neměla klesat pod 110 °C, chráníte tím svůj kotel a komín. - Kotel musí být zabezpečen proti přetopení v případě výpadku elektrické energie
Zapojením chladící smyčky kotle na vodovodní řád nebo použitím záložního zdroje el. energie, ochráníte kotel a topný systém proti přetopení v případě nenadálého výpadku elektrické energie. - Maximální pracovní přetlak vody v kotli – 250 kPA (2,5 bar)
Nikdy nezapomeneme za kotel nainstalovat pojišťovací ventil a expanzní nádobu, která chrání kotel a topný systém proti poškození.
Správná velikost expanzní nádoby zabezpečí dlouhou životnost kotle a všech zařízení v systému (ventily, radiátory, kombi bojler, akumulační nádrž atd.).
Otevřená expanzní nádoba by měla mít objem min. 10 % celkového objemu systému. Uzavřená expanzní nádoba by měla mít objem min. 13 % celkového objemu systému.












































