DC150S – Informații tehnice
![]() |
Puterea cazanului 150 kW | |
| Randamentul cazanului 90,3 % | ||
| Clasa de emisii 5 (Ecodesign) | ||
| Lungimea lemnului 730 mm |
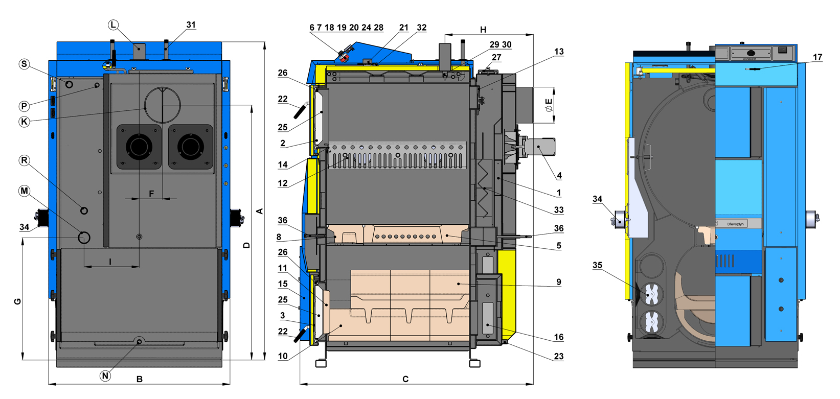
| Legendă pentru desenele cazanului | |||
|---|---|---|---|
| 1. | Corpul cazanului | 24. | Termostatele ventilatorului 2 |
| 2. | Ușa de alimentare combustibil (de umplere) | 25. | Termoizolaţie uşă – Sibral – mare |
| 3. | Uşă de evacuare a cenuşii | 26. | Şnur etanşare uşă 18 x 18 |
| 4. | Ventilator – evacuare (J22RR552) – 2x | 27. | Capac de curăţare – superior |
| 5. | Piesă ceramică refractară – duză de aer | 28. | Termostat gaze arse |
| 6. | Panou de comandă | 29. | Termostat pe pompă – 70 °C |
| 7. | Termostat de siguranţă | 30. | Termostat pe pompă – de siguranţă – 95 °C |
| 8. | Scheletul duzei – prelungire | 31. | Serpentină de răcire contra supraîncălzirii |
| 9. | Piesă ceramică refractară – partea laterală a focarului – partea superioară | 32. | Condensator – 2x |
| 10. | Piesă ceramică refractară – partea laterală a focarului – partea inferioară | 33. | Clapetă de aer coșul de fum – 2x |
| 11. | Piesă ceramică refractară – tip semilună | 34. | Servo Belimo |
| 12. | Diafragma aer primar – 2x | 35. | Clapetă de aer – în placa tubulară – 4x |
| 13. | Clapetă de aprindere | 36. | Reglarea raportului de aer secundar |
| 14. | Ecranul focarului | ||
| 15. | Capac placă cu tubulară | ||
| 17. | Mânerul clapetei de aprindere | K | – gâtul canalului de fum |
| 18. | Termometru | L | – ieşirea apei din cazan |
| 19. | Termostatele ventilatorului 1 | M | – intrarea apei în cazan |
| 20. | Întrerupător | N | – mufă pentru robinetul de umplere |
| 21. | Modulul AD03 – 2x | P | – mufă pentru senzorul ventilului de comandă a de răcire (TS 131, STS 20) |
| 22. | Închizătoare uşiţe | S | – ieşire alternativă (de ex. pentru vasul de expansiune sau boiler) |
| 23. | Robinet de umplere | R | – ieşire alternativă (de ex. pentru vasul de expansiune sau boiler) |
| Tipul cazanului | DC150S | |
| Putere termică cazan | kW | 150 |
| Putere consumată cazan | kW | 166,1 |
| Suprafaţa de încălzire | m2 | 8,8 |
| Volumul rezervorului de combustibil | dm3 (l) | 400 |
| Dimensiunea deschizăturii de umplere | mm | 450 x 315 |
| Tirajul necesar al coşului | Pa / mbar | 25 / 0,25 |
| Suprapresiunea maximă de lucru a apei | kPa / bar | 250 / 2,5 |
| Greutatea cazanului | kg | 1030 |
| Diametru racordare coş (evacuare gaze arse) | mm | 200 |
| Acoperirea părţilor electrice | IP | 20 |
| Putere electrică consumată (auxiliară) | W | 185 |
| Putere electrică consumată în starea de stand-by | W | 0 (3/5,5) |
| Regim de aprindere |
manual | |
| Randamentul cazanului | % | 90,3 |
| Clasa cazanului | 5 | |
| Categorie cazan | 1 | |
| Regim de operare | fără condensare | |
| Clasa de eficiență energetică | A+ | |
| Temperatura gazelor reziduale la puterea nominală conform EN 303-5 | °C | 180 |
| Temperatura gazelor arse / tiraj pentru calcularea traseului gazelor arse (coș de fum) | °C / Pa | 190 / 25 |
| Debit substanţial al gazelor de ardere la puterea nominală | kg / s | 0,086 |
| Combustibil recomandat (Combustibil de bază) | lemn uscat cu putere calorică 15 – 17 MJ.kg-1, conţinut apă min. 12 % – max. 20 %, diametru 80 – 150 mm |
|
| Comsum mediu de combustibil | kg.o-1 | 38 |
| Consum de combustibil pe sezon de încălzire | 1 m3 / 1 kW de putere nominală | |
| Lungimea max. a butucilor | mm | 750 |
| Timp de ardere continuă la putere nominală | ore | 4 |
| Volumul apei din cazan | l | 306 |
| Pierderea hidraulică a cazanului | mbar | 0,29 |
| Volumul minim al rezervorului compensatoriu | l | 1000 |
| Tensiune de alimentare | V / Hz | 230 / 50 |
| Dimensiunile cazanului (mm) | DC150S |
| A | 1813 |
| B | 1010 |
| C | 1295 |
| D | 1459 |
| E | 200 |
| F | 129 |
| G | 721 |
| H | 492 |
| I | 307 |
| J | 2″ |

