DC150S – Specification
![]() |
Rated power 150 kW | |
| Boiler efficiency 90,3 % | ||
| Emission class nr. 5 (Ecodesign) | ||
| Subsidized boiler (SVT22240) | ||
| Log lenght 730 mm |
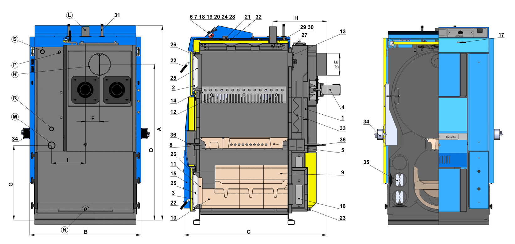
| Description of the boiler drawing | |||
|---|---|---|---|
| 1. | Boiler body | 24. | Fan thermostat 2 (boiler) |
| 2. | Filling door – upper | 25. | Door panel – Sibral – big |
| 3. | Ashtray door – lower | 26. | Door seal – cord 18 x 18 |
| 4. | Extraction fan (J22RR552) – 2x | 27. | Cleaning lid |
| 5. | Heat-resistant fitting – nozzle | 28. | Waste gas thermostat |
| 6. | Control panel | 29. | Pump thermostat – 70 °C |
| 7. | Safety thermostat | 30. | Safety pump thermostat – 95 °C |
| 8. | Nozzle cube – extension | 31. | Cooling loop against overheating |
| 9. | Heat-resistant fitting – spherical space upper | 32. | Capacitor – 2x |
| 10. | Heat-resistant fitting – spherical space lower | 33. | Flue gas brake in the flue – 2x |
| 11. | Heat-resistant fitting – half-moon | 34. | Belimo actuator |
| 12. | Shield of the primary air – 2x | 35. | Flue gas brake – in tubesheets – 4x |
| 13. | Firing up valve | 36. | Secondary air regulation |
| 14. | Aperture frame | ||
| 15. | Tube sheet cover | ||
| 17. | Fire valve stem | K | – the flue-gas duct neck |
| 18. | Thermometer | L | – the boiler water outlet |
| 19. | Fan thermostat 1 (boiler) | M | – the boiler water inlet |
| 20. | Switch | N | – filling valve pipe sleeve |
| 21. | Modul AD03 – 2x | P | – sleeve for a sensor of the valve which regulates the cooling loop |
| 22. | Door handle | S | – spare output (such as for an expansion tank or a water heater) |
| 23. | Filling valve | R | – spare output (such as for an expansion tank or a water heater) |
| Boiler type | DC150S | |
| Boiler heat output | kW | 150 |
| Boiler thermal input | kW | 166,1 |
| Heating surface | m2 | 8,8 |
| Fuel shaft volume | dm3 (l) | 400 |
| Feeding hole dimensions | mm | 450 x 315 |
| Prescripted chimney draft | Pa / mbar | 25 / 0,25 |
| Max. operating water-pressure | kPa / bar | 250 / 2,5 |
| Boiler weight | kg | 1030 |
| Gas-outlet pipe diameter | mm | 200 |
| Electric parts ingress protection | IP | 20 |
| Electrical power input (auxiliary) | W | 185 |
| Electrical input in standby mode | W | 0 (3/5,5) |
| Ignition mode | manual | |
| Efficiency over the entire performance range | % | 90,3 |
| Boiler class | 5 | |
| Boiler category | 1 | |
| Operating mode | non-condensing | |
| Solid fuel boiler with cogeneration unit | no | |
| Combined device also for heating of DHW | no | |
| Energy efficiency class | A+ | |
| Waste gas temperature at nominal output as per EN 303-5 | °C | 180 |
| Flue gas temperature / draught for calculating the flue gas path (chimney) |
°C / Pa | 190 / 25 |
| Waste gas combustion products flow weight at nominal output | kg / s | 0,086 |
| Specified fuel (preffered) | dry wood (logs) of 15 – 17 MJ.kg-1 caloric power, 12 – 20 % water content, 80 – 150 mm diameter | |
| Average fuel consumption | kg.h-1 | 38 |
| Average consumption for the heating season | 1 kW = 1 m3 | |
| Prescribed wood length | mm | 750 |
| Combustion time at nominal output | hours | 4 |
| The volume of water in the boiler | l | 306 |
| Hydraulic pressure drop | mbar | 0,29 |
| Equalising tank minimum volume | l | 1000 |
| Connecting voltage | V / Hz | 230 / 50 |
| Dimensions (mm) | DC150S |
| A | 1813 |
| B | 1010 |
| C | 1295 |
| D | 1459 |
| E | 200 |
| F | 129 |
| G | 721 |
| H | 492 |
| I | 307 |
| J | 2″ |

