DC150S — технические параметры
![]() |
Мощность котла 150 кВт | |
| КПД котла 90,3 % | ||
| Класс эмиссии 5 (Ekodesign) | ||
| Длина поленьев 730 mm |
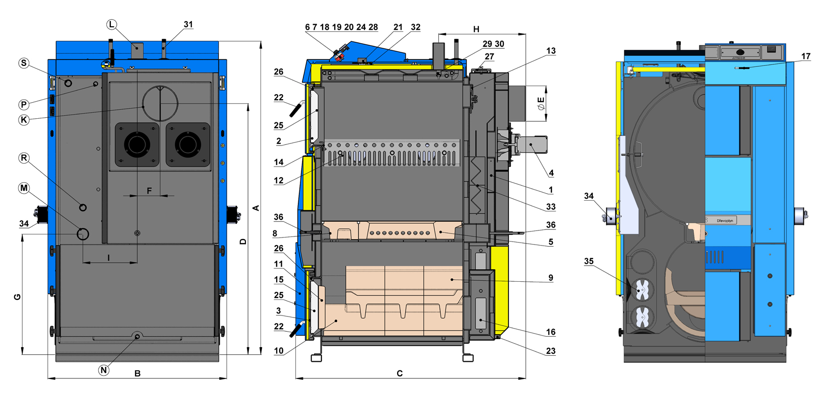
| Пояснения к чертежам котлов | |||
|---|---|---|---|
| 1. | Корпус котла | 24. | Термостат вентилятора 2 (котловой) |
| 2. | Дверца загрузочная — верхняя (только правое исполнение) | 25. | Заполнение дверцы — Сибрал — большое |
| 3. | Дверца для зольника | 26. | Прокладка дверцы — шнур 18 x 18 |
| 4. | Вентилятор (J22RR552) — 2x | 27. | Крышка для чистки — верхний |
| 5. | Огнеупорный блок — форсунка | 28. | Термостат дымовых газов |
| 6. | Панель управления | 29. | Термостат для насоса — 70 °C |
| 7. | Предохранительный термостат | 30. | Термостат для насоса — предохранительный — 95 °C |
| 8. | Куб форсунка — расширение | 31. | Охладительный контур для защиты от перегрева |
| 9. | Огнеупорный блок — сферический отсек — верхняя часть | 32. | Конденсатор — 2x |
| 10. | Огнеупорный блок — сферический отсек — нижняя часть | 33. | Замедлитель дымовых газов в дымоходе — 2x |
| 11. | Огнеупорный блок — полумесяц | 34. | Сервопривод Belimo |
| 12. | Заслонка первичного воздуха — 2x | 35. | Замедлитель дымовых газов в трубчатом теплообменнике — 4x |
| 13. | Растопочная заслонка | 36. | Регулятор вторичного воздуха |
| 14. | Заслонка рамки | ||
| 15. | Крышка трубчатого теплообменника | ||
| 17. | Тяга растопочной заслонки | K | — горловина дымохода |
| 18. | Термометр | L | — выход воды из котла |
| 19. | Термостат вентилятора 1 (котловой) | M | — вход воды в котёл |
| 20. | Выключатель | N | — патрубок для напускного клапана |
| 21. | Модуль AD03 — 2x | P | — патрубок для датчика клапана, управляющего контуром охлаждения (TS 131, STS 20) |
| 22. | Закрывание дверцы | S | — альтернативный выход (например, для расширительного бака или бойлера) |
| 23. | Напускной клапан | R | — альтернативный выход (например, для расширительного бака или бойлера) |
| Технические характеристики | DC150S | |
| Теплопроизводительность котла | кВт | 150 |
| Тепловая потребляемая мощность котла | кВт | 166,1 |
| Поверхность нагрева | м2 | 8,8 |
| Объём топливной шахты | дм3 (л) | 400 |
| Размер загрузочного отверстия | мм | 450 x 315 |
| Предписанная тяга дымовой трубы | Па/мбар | 25/0,25 |
| Макс. рабочее избыточное давление воды | кПа/бар | 250/2,5 |
| Вес котла | кг | 1030 |
| Диаметр вытяжной горловины | мм | 200 |
| Степень защиты электрической части | IP | 20 |
| Электрическая потребляемая мощность (вспомогательная) | Вт | 185 |
| Электрическая потребляемая мощность в режиме ожидания | Вт | 0 |
| Запальный режим | ручной | |
| КПД | % | 90,3 |
| Класс котла | 5 | |
| Категория котла | 1 | |
| Рабочий режим | неконденсирующийся | |
| Котёл на твёрдом топливе с когенерационным модулем | Нет | |
| Комбинированный котёл, служащий и для нагрева ГВС | Нет | |
| Класс энергоэффективности | A+ | |
| Температура продуктов сгорания при номинальной мощности | °C | 180 |
| Массовый расход дымовых газов при номинальной мощности | кг/с | 0,086 |
| Предписанное топливо (предпочитаемое) | Сухая древесина (бревна) теплотворной способностью 15 – 17 МДж/кг-1, диаметром 80 – 150 мм и влажностью 12 – 20 %. | |
| Максимальный уровень шума — согласно EN15036-1 | дБ | — |
| Средний расход топлива | кг.ч-1 | 38 |
| Расход за отопительный сезон | 1 кВт = 1 складочный кубический метр | |
| Предписанная длина дров | мм | 750 |
| Время горения при номинальной мощности | ч | 4 |
| Объем воды в котле | л | 306 |
| Гидравлические потери котла | мбар | 0,29 |
| Минимальный объём буферном баке | л | 1000 |
| Напряжение питания | В/Гц | 230/50 |
| Размеры котлов (мм) | DC150S |
| A | 1813 |
| B | 1010 |
| C | 1295 |
| D | 1459 |
| E | 200 |
| F | 129 |
| G | 721 |
| H | 492 |
| I | 307 |
| J | 2″ |

