DC150S – parametry techniczne
![]() |
Moc kotła 150 kW | |
| Wydajność kotła 90,3 % | ||
| Klasa emisji 5 (Ecodesign) | ||
| Długość polan 730 mm |
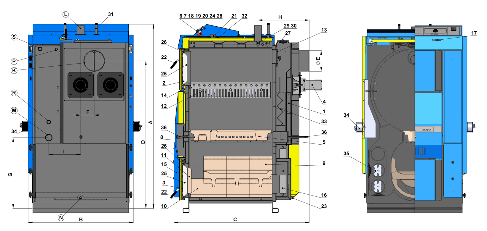
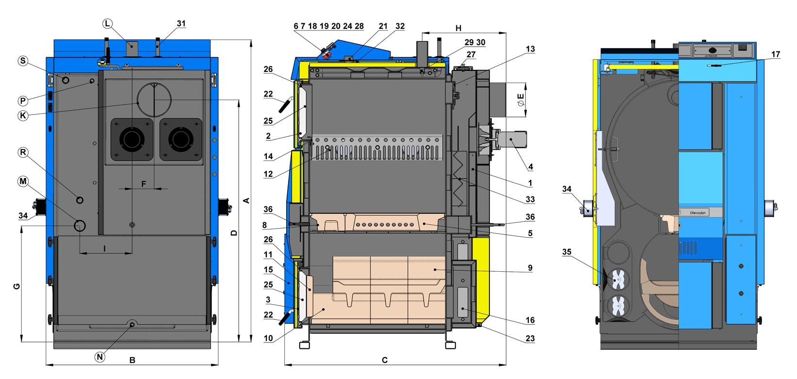
| Legenda do rysunku kotła | |||
|---|---|---|---|
| 1. | Korpus kotła | 24. | Termostat wentylatora 2 |
| 2. | Drzwiczki wrzutowe (nadzienie) | 25. | Wypełnienie drzwiczek – Sibral – duży |
| 3. | Drzwiczki popielnika | 26. | Uszczelka drzwiczek – sznurek 18 x 18 |
| 4. | Wentylator wyciągowy – 2x | 27. | Wieko do czyszczenia – górna |
| 5. | Żaroodporna kształtka – dysza | 28. | Termostat spalinowy |
| 6. | Panel sterowania | 29. | Termostat pompy – 70 °C |
| 7. | Termostat bezpieczeństwa | 30. | Termostat pompy – zabezpieczający – 95 °C |
| 8. | Kostka dyszy – wydłużenie | 31. | Spirala chłodząca przed przegrzaniem |
| 9. | Żaroodporna kształtka – przestrzeń kulista – górna część | 32. | Kondensator – 2x |
| 10. | Żaroodporna kształtka – przestrzeń kulista – dolna część | 33. | Zwalniacz spalin w kanale dymowym – 2x |
| 11. | Żaroodporna kształtka – półksiężyc | 34. | Siłownik Belimo |
| 12. | Osłona powietrza pierwotnego – 2x | 35. | Zwalniacze spalin – do zastosowania w dnie sitowym – 4x |
| 13. | Zawór do rozpalania | 36. | Regulacja powietrza wtórnego |
| 14. | Osłona ramki | ||
| 15. | Pokrywa ściany sitowej | ||
| 16. | Wieko do czyszczenia – dolna |
||
| 17. | Cięgno zaworu do rozpalania | K | – króciec czopucha |
| 18. | Termometr | L | – wylot wody z kotła |
| 19. | Termostat wentylatora 1 | M | – wlot wody do kotła |
| 20. | Wyłącznik | N | – nasada do kurka napełniania |
| 21. | Modul AD03 – 2x | P | – króciec dla czujnika zaworu sterującego spiralą chłodzącą (modele TS 131, STS 20) |
| 22. | Zamek drzwi | S | – drugie wyjście (np. na zbiornik wyrównawczy lub bojler) |
| 23. | Kurek wlewu | R | – drugie wyjście (np. na zbiornik wyrównawczy lub bojler) |
| Typ kotła | DC150S | |
| Moc cieplna kotła | kW | 150 |
| Zużycie ciepła kotła | kW | 166,1 |
| Powierzchnia grzewcza | m2 | 8,8 |
| Pojemność zasypu paliwa | dm3 (l) | 400 |
| Rozmiar otworu do napełniania | mm | 450 x 315 |
| Wymagany ciąg komina | Pa / mbar | 25 / 0,25 |
| Maks. ciśnienie robocze wody | kPa / bar | 250 / 2,5 |
| Masa kotła | kg | 1030 |
| Średnica króćca spalinowego | mm | 200 |
| Stopień ochrony części elektrycznej | IP | 20 |
| Zużycie energii (pomocnicze) | W | 185 |
| Zużycie energii w trybie czuwania | W | 0 |
| Tryb zapłonu | ręczny | |
| Sprawność kotła | % | 90,3 |
| Klasa kotła | 5 | |
| Kategoria kotła | 1 | |
| Tryb pracy | bezkondensacyjny | |
| Klasa efektywności energetycznej | A+ | |
| Temperatura spalin przy mocy znamionowej według EN 303-5 | °C | 180 |
| Temperatura spalin / ciąg do obliczenia drogi spalin (komin) | °C / Pa | 190 / 25 |
| Przepływ masowy spalin przy mocy znamionowej | kg / s | 0,086 |
| Wymagane paliwo (zalecane) | Suche drewno (kłody) o kaloryczności 15 – 17 MJ.kg-1, zawartość wody min. 12 % – maks. 20 %, średnica 80 – 150 mm | |
| Maksymalny poziom hałasu – zgodnie EN15036-1 | dB | – |
| Przeciętne zużycie paliwa | kg.g-1 | 38 |
| Zużycie na sezon grzewczy | 1 kW = 1 metr sześcienny paliwa | |
| Maks. długość polan | mm | 750 |
| Czas palenia przy nominalnej wydajności | godzin | 4 |
| Objętość wody w kotle | l | 306 |
| Strata hydrauliczna kotła | mbar | 0,29 |
| Minimalna zawartość zbiornika wyrównującego | l | 1000 |
| Napięcie zasilania | V / Hz | 230 / 50 |
| Prawidłowa minimalna temperatura powrotnej wody podczas pracy wynosi 65 °C. Prawidłowa temperatura kotła podczas pracy wynosi 80 – 90 °C. |
||
| Wymiary | DC150S |
| A | 1813 |
| B | 1010 |
| C | 1295 |
| D | 1459 |
| E | 200 |
| F | 129 |
| G | 721 |
| H | 492 |
| I | 307 |
| J | 2″ |

