Kompaktowe zbiorniki na pelety z przenośnikiem
Jest to zestaw zbiornika na pelety o pojemności 240 l / 300 l / 400 l z przenośnikiem DRA25, przeznaczony do małych kotłowni. Umożliwia umiejscowienie zbiornika bezpośrednio przy kotle w taki sposób, żeby zestaw zajmował mało miejsca.
| Zestaw AZPD przeznaczony do kotłów na pelety DxxP, DCxxSP(X), CxxSP |
 |
 |
Zestaw AZPD 240 R (czerwony)
długość 1,3 m (przekładnia 25 W)
kod zamówienia: H0283
|
Zestaw AZPD 240 B (niebieski)
długość 1,3 m (przekładnia 25 W)
kod zamówienia: H0284 |
W zbiorniku o pojemności użytkowej 240 l zmieści się 156 kg pelet, tj. ok. 700 kWh. (10 worków / 15 kg)
|
| Zestaw AZPD przeznaczony do kotłów na pelety DxxP, DCxxSP(X), CxxSP |
 |
 |
Zestaw AZPD 300 R Design (czerwony)
długość 1,3 m (przekładnia 25 W)
kod zamówienia: H0321
|
Zestaw AZPD 300 B Design (niebieski)
długość 1,3 m (przekładnia 25 W)
kod zamówienia: H0322 |
W zbiorniku o pojemności użytkowej 300 l zmieści się 195 kg pelet, tj. ok. 880 kWh. (13 worków / 15 kg)
|
| Zestaw AZPD przeznaczony do kotłów na pelety DxxP, DCxxSP(X), CxxSP |
 |
 |
Zestaw AZPD 400 R Design (czerwony)
długość 1,3 m (przekładnia 25 W)
kod zamówienia: H0445
|
Zestaw AZPD 400 B Design (niebieski)
długość 1,3 m (przekładnia 25 W)
kod zamówienia: H0446 |
| W zbiorniku o pojemności użytkowej 400 l zmieści się 260 kg pelet, tj. ok. 1170 kWh. (17 worków / 15 kg) |
| Zestaw AZPU przeznaczony do kotłów gazyfikujące z modyfikacją do palnika na pelety |
 |
 |
Zestaw AZPU 240 C (czerwony)
długość 1,7 m (przekładnia 25 W)
kod zamówienia: H0280
|
Zestaw AZPU 240 M (niebieski)
długość 1,7 m (przekładnia 25 W)
kod zamówienia: H0281 |
W zbiorniku o pojemności użytkowej 240 l zmieści się 156 kg pelet, tj. ok. 700 kWh. (10 worków / 15 kg)
|
| Zestaw AZPU przeznaczony do kotłów gazyfikujące z modyfikacją do palnika na pelety |
 |
 |
Zestaw AZPU 400 C Design (czerwony)
długość 1,7 m (przekładnia 25 W)
kod zamówienia: H0447
|
Zestaw AZPU 400 M Design (niebieski)
długość 1,7 m (przekładnia 25 W)
kod zamówienia: H0448 |
| W zbiorniku o pojemności użytkowej 400 l zmieści się 260 kg pelet, tj. ok. 1170 kWh. (17 worków / 15 kg) |
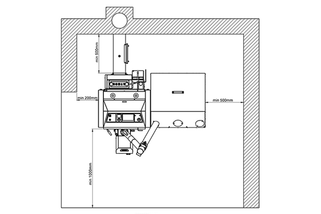
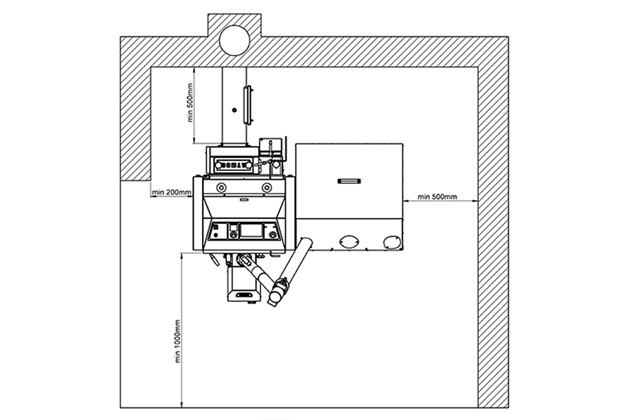
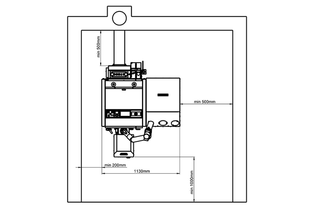
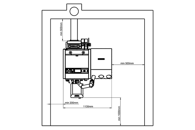
Przykład instalacji kompaktowych zasobników na pelety
-
-
Zestaw AZPD 300 z kotłem DxxP
-
-
Przestrzeń kotłowni z AZPD i kotłem DxxP
-
-
Zestaw AZPU 400 C z kotłem z modyfikacją do palnika
-
-
Przestrzeń kotłowni z AZPU 400
-
-
Zestaw AZPD 300 z kotłem DCxxSP(X)
-
-
Przestrzeń kotłowni z AZPD 300 i kotłem DCxxSP(X)